Page suivante
Page précédente
Thônes (74230)

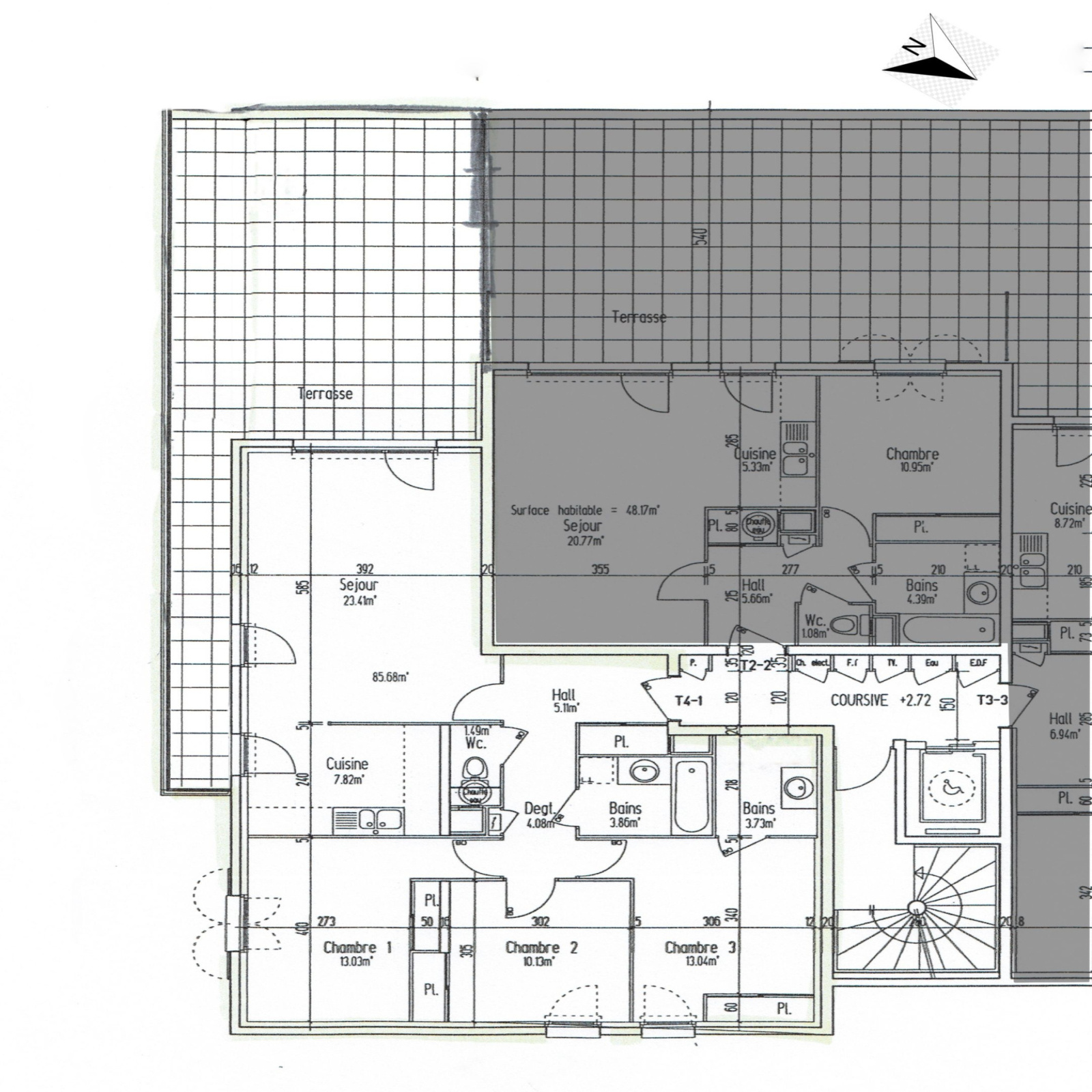
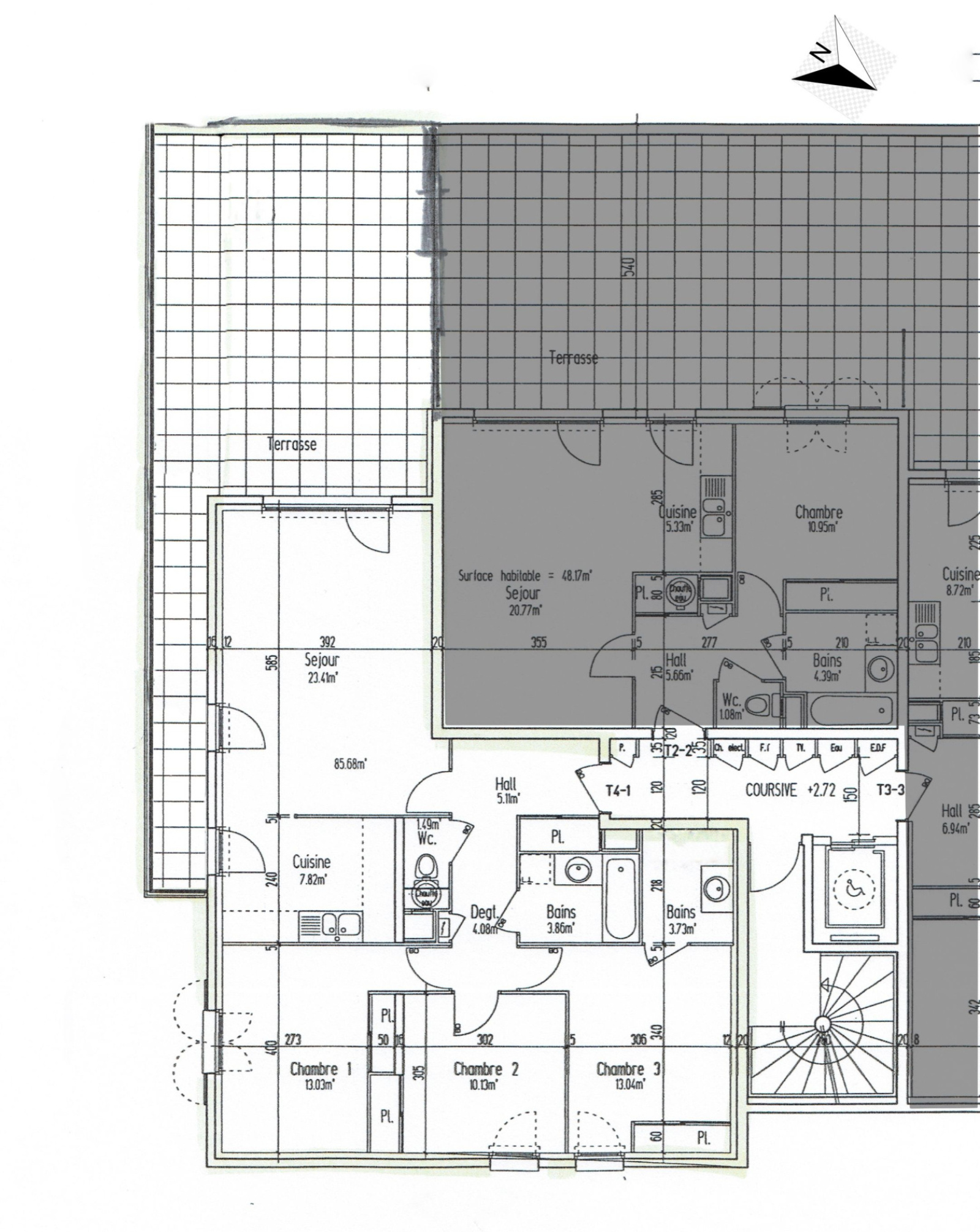
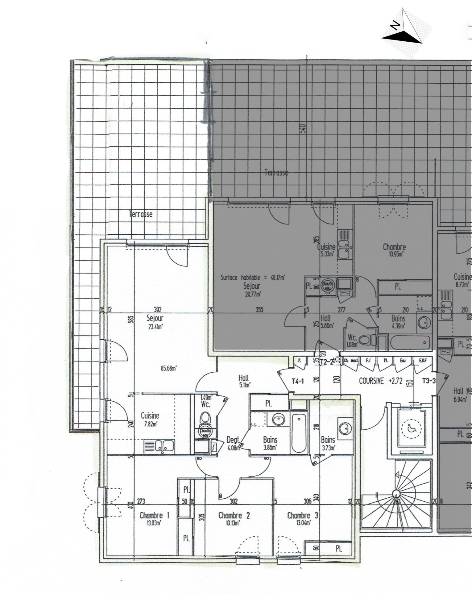
Appartement 4 pièce(s) 3 chambre(s) 86.36 m²

1
Ascenseur
1
Réf 623C74A78589C265395662
Vous serez séduits par ce joli produit ! Situation privilégiée favorable Est/Sud/Ouest, proche de toutes les commodités, à deux pas du centre ville. Cet appartement traversant a fait l'objet dernièrement d'une rénovation intérieure. Il est composé d'une belle pièce de vie de 24 m2 et d'une terrasse de 80 m2 idéalement orientée. Sa cuisine semi-ouverte, son couloir de dégagement permettant de distribuer : une salle de bain, un WC, 2 chambres (13 et 10 m2) équipées de placards, d'une suite parentale de 13 m2 avec placards, salle d'eau, WC. Ses atouts annexes : une cave, place privative de stationnement et un garage avec porte automatique. Copropriété de 10 lots. Pas de procédure en cours. Charges annuelles : 1 700 €

Bilan énergétique

Diagnostics énergetiques
A propos de ce bien Caractéristiques de ce bien
  • Surface 86,36 m²
  • carrez 86,36 m²
  • 3 chambre(s)
  • 1 salle(s) de bain
  • construit en 2005
  • Chauffage individuel : autre (electrique)
  • 1 parking(s)
  • 3 niveau(x)
  • 3 étage(s)
  • ascenseur
  • vue Dégagée montagnes
  • cave
  • terrasse
  • Oui accès handicapé

Composition

Composition de ce bien

Rez-de-chaussée

  • entrée 9.12 m²
  • salle de bain 3.93 m²
  • chambre 1 13.14 m²
  • salle d\\\'eau 3.74 m²
  • chambre 2 10.32 m²
  • chambre 3 12.85 m²
  • toilettes 1.46 m²
  • séjour 23.98 m²
  • cuisine 7.82 m²

Financier

Informations financières
Charges 145 €
Taxe foncière annuelle 600 €

Simulation

Calcul des mensualités
* Champs obligatoires
Nathalie BARRACHIN Négociatrice